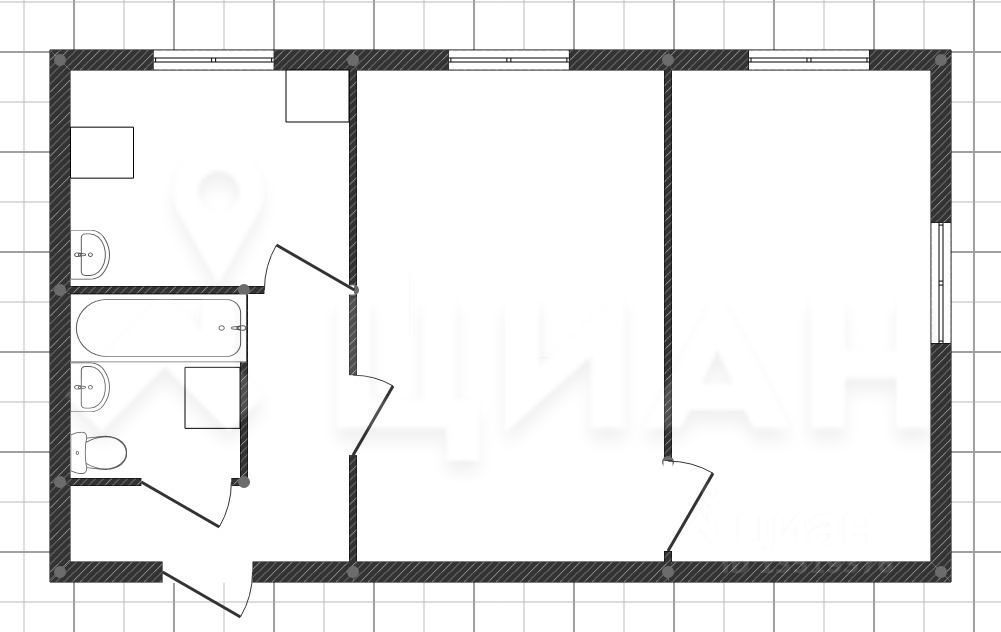
Двухкомнатная квартира в доме хрущёвской планировки на третьем этаже. Квартира в жилом состоянии, частично требуется ремонт. Окна ПВХ. Санузел совмещенный, установлен новый унитаз, стены - пластик. Входная дверь нового образца.
Дом находится в районе с развитой инфраструктурой, рядом с домом: остановки общественного транспорта, СРК Арена, киноконцертный комплекс Арт холл, аптеки, сетевые супермаркеты и многое другое. Помощь в оформлении ипотеки, юридическое сопровождение сделки.
Код пользователя: 171504
Номер в базе: 8832122










