3-к, Игарская, 50 Показать на карте
Норильск
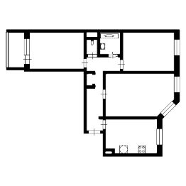
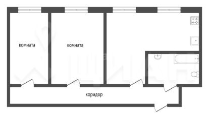
Продается 3х комнатная квартира с косметическим ремонтом в районе Талнах, на 4а мкр, на среднем этаже, 84 серии в девятиэтажном панельном доме.1. Квартира большая, просторная, все комнаты изолированы. Полы ровные, на полу линолеум, свежие обои по всей квартире, натяжные потолки с точечным освещением. Остается вся мебель и техника, кроме большого ЖК телевизора в спальне.2. Санузел раздельный, вся сантехника в рабочем состоянии, имеется счетчики горячей и холодной воды. Ванная и санузел облицованы стены панелями, на полу кафель.3. Электрика работает бесперебойно.4. Дом расположен в районе с хорошо развитой инфраструктурой: в шаговой доступности остановка общественного транспорта, детский сад, школа, супермаркет Океан, магазины, Сфетофор, рудники Таймырский, Октябрьский, удобная транспортная развязка.Квартиру можно купить в ипотеку ВТБ, Сбербанка, подходит под Арктическую ипотеку 2%5. (Только данный объект в залоге у ТБанка, если будет потенциальный клиент, ипотеку погасим полностью и снимем обременение) !!!, полное сопровождение сделки и гарантия безопасности. Код пользователя: 104210Номер в базе: 12435150
64 м2
4 / 9 этаж
Панель
- Показать контакты
- Добавить в избранное
64 м2
4 / 9 этаж
Панель
6 500 000
101 563 /м2
