2-к, Ленинский проспект, 13 Показать на карте
Норильск
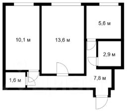
Продается просторная квартира в центре Норильска на Ленинском проспекте, 13. Общая площадь — впечатляющие 58,4 кв. м, что дает возможность обустроить пространство по вашему вкусу. Квартира расположена на 2 этаже 5-этажного кирпичного дома, построенного в 1957 году. Высота потолков 2.7 метра, что добавляет ощущение свободы и простора. В квартире есть две большие комнаты, которые легко можно превратить в уютные спальни или рабочие кабинеты. Огромная кухня площадью 58.4 кв. м станет сердцем вашего дома, где можно устраивать семейные ужины и принимать гостей. В квартире выполнен качественный ремонт, она полностью меблирована и оснащена всей необходимой техникой. Санузел раздельный, что очень удобно для проживания семьи.Дом в отличном состоянии, регулярно проводится обслуживание и ремонт. При доме есть просторная парковка, поэтому всегда найдется место для вашего автомобиля. Район с развитой инфраструктурой: рядом находятся школы, детские сады, магазины и супермаркеты, что делает проживание здесь комфортным и удобным. В нескольких минутах ходьбы расположены остановки общественного транспорта, что позволяет быстро добраться в любую часть города. Квартира продается без обременений, все документы готовы к сделке. Возможна ипотека, что делает покупку еще более доступной. Объявление от собственника, поэтому никаких дополнительных комиссий.Приезжайте на просмотр, чтобы лично оценить все преимущества этой замечательной квартиры. Записывайтесь на удобное для вас время и станьте обладателем отличного жилья в центре города!
58 м2
2 / 5 этаж
Кирпич
- Показать контакты
- Добавить в избранное
58 м2
2 / 5 этаж
Кирпич
5 900 000
101 027 /м2
