1-к, Богдана Хмельницкого, 21 Показать на карте
Норильск
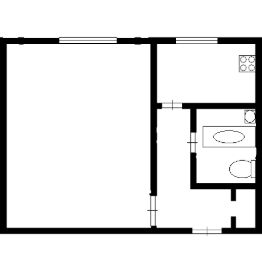
Продается квартира-студия бизнес класса площадью 65кв.м, ''сталинка'' на втором этаже пятиэтажного дома(в квартире никто не прописан),город Норильск, центр, в районе музыкальной школы, улица Богдана-Хмельницкого, дом 21. Все окна выходят во двор, остановки и магазины всё рядом.Сделан полный капитальный ремонт и полная перепланировка (согласованная, документы на перепланировку есть).Трубы отпления заменены во всех помещениях, установлены большие радиаторы.Все окна заменены на пластиковые, с двойным стеклопакетом для севера.Все полы были вскрыты и переделаны. Под доски уложены толстые листы утеплителя. В прихожей, ванной комнате и кухне залита армированная стяжка, уложен керамогранит.Пол в прихожей, ванной комнате и на кухне с электрическим подогревом (каждый регулируется раздельно, стоят три регулятора температуры с датчиками).В комнате пол опущен, на существующие доски уложены листы толстой фанеры, сверху уложен ламинат.Входня дверь изготовлена в норильске в цехе по индивидуальному заказу (высота двери под весь проём, дверь утеплена и усилена, покрытие антивандал).Вторая входная дверь из двойного стекла, заказана и изготовлена в Германии (выполнена по технологии битогостекла).Вся электропроводка заменена и выполнена из меди. Все блоки электрической схемы квартиры выведены на отдельные автоматы. Установлена система автоматического аварийного освещения во всех помещениях при пропадании напряжения.В ванной комнате установлены две стеклянные двери производства Германии, установлена большая джакузи (оригинальная) и гидромассажная стойка с различными типами полива, установлена французская сантехника, возле джакузи полка выполнена из стекла по индивидуальному заказу. Стены покрыты гипсокартоном - оштукатурены и выровнены, в местах с выходом на лестничный пролёт уложен изовер.Стены в зале и коридоре выполнены по индивидуальному дизайну (арки, ниши, зеркала). Потолок выполнени из натяжной ткани. Подсветка выполнена из светодиодных ламп.Кухня небольшая, совмещена с общим залом студии.В зале остается диван из натуральной кожи ''слоновая кость'' (изготовлен по индивидуальному заказу под эту квартиру).Диван может раскладываться в размер ''Super king size'', каждое из двух спальных мест имеет размер евро. Мебель и техника остаются. Один взрослый собственник.В квартире никто не прописан.Без обременений.
65 м2
2 / 5 этаж
Кирпич
- Показать контакты
- Добавить в избранное
65 м2
2 / 5 этаж
Кирпич
7 500 000
115 031 /м2
