1-к, Молодежный проезд, 1 Показать на карте
Норильск
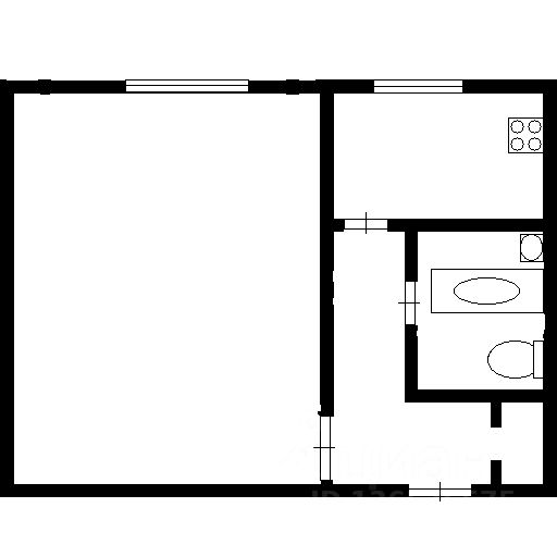
Предлагается к продаже чистая квартира-студия с выполненным ремонтом. Произведена замена всей электропроводки и труб. В квартире имеются новый холодильник, стиральная машина, плита, а также большой угловой диван. В непосредственной близости находятся магазины ''Жарптица'' и ''Подсолнух'', городской рынок, салоны красоты и другие полезные заведения. Автовокзал расположен всего в пяти минутах ходьбы.
21 м2
4 / 9 этаж
Панель
- Показать контакты
- Добавить в избранное
21 м2
4 / 9 этаж
Панель
1 500 000
69 124 /м2
